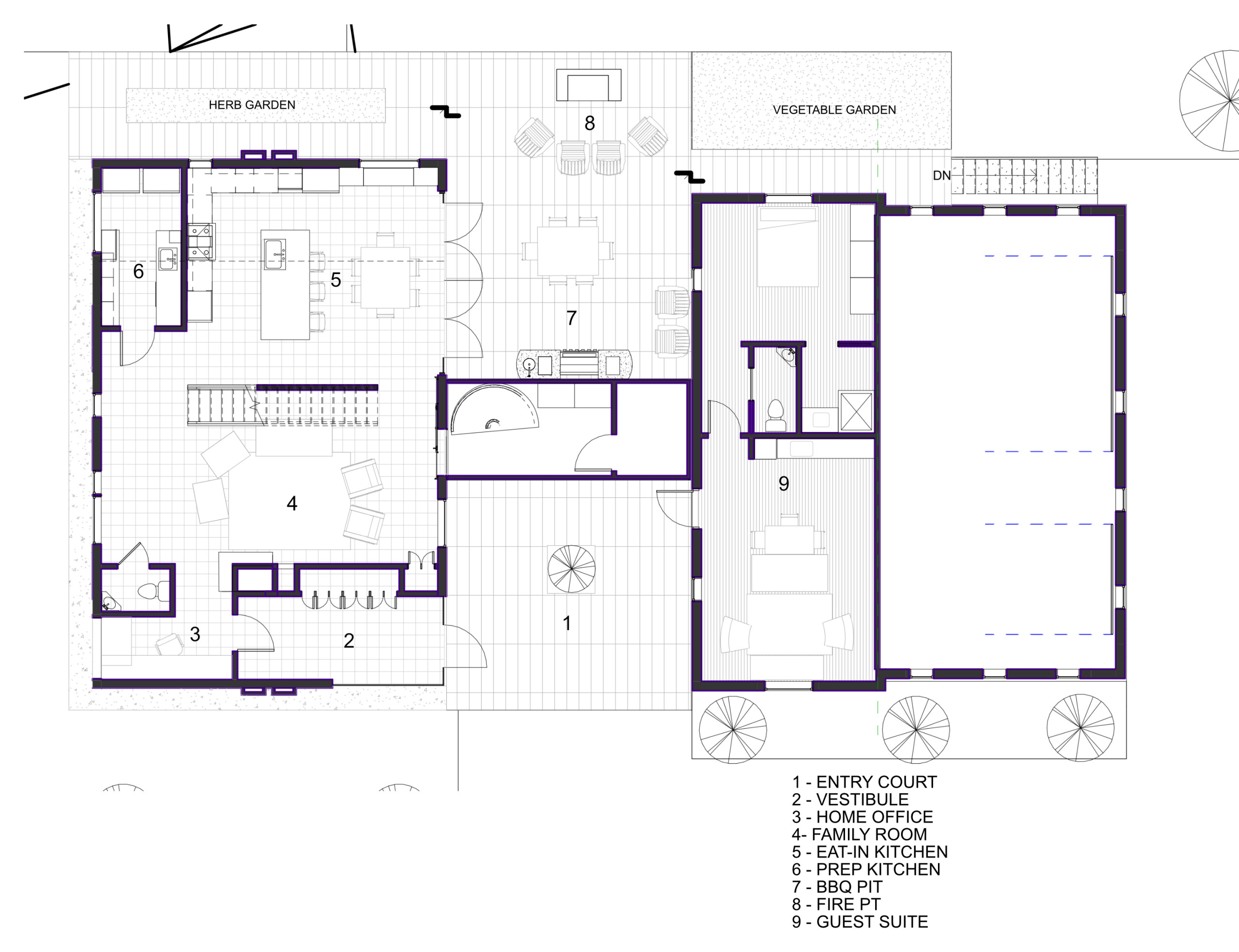
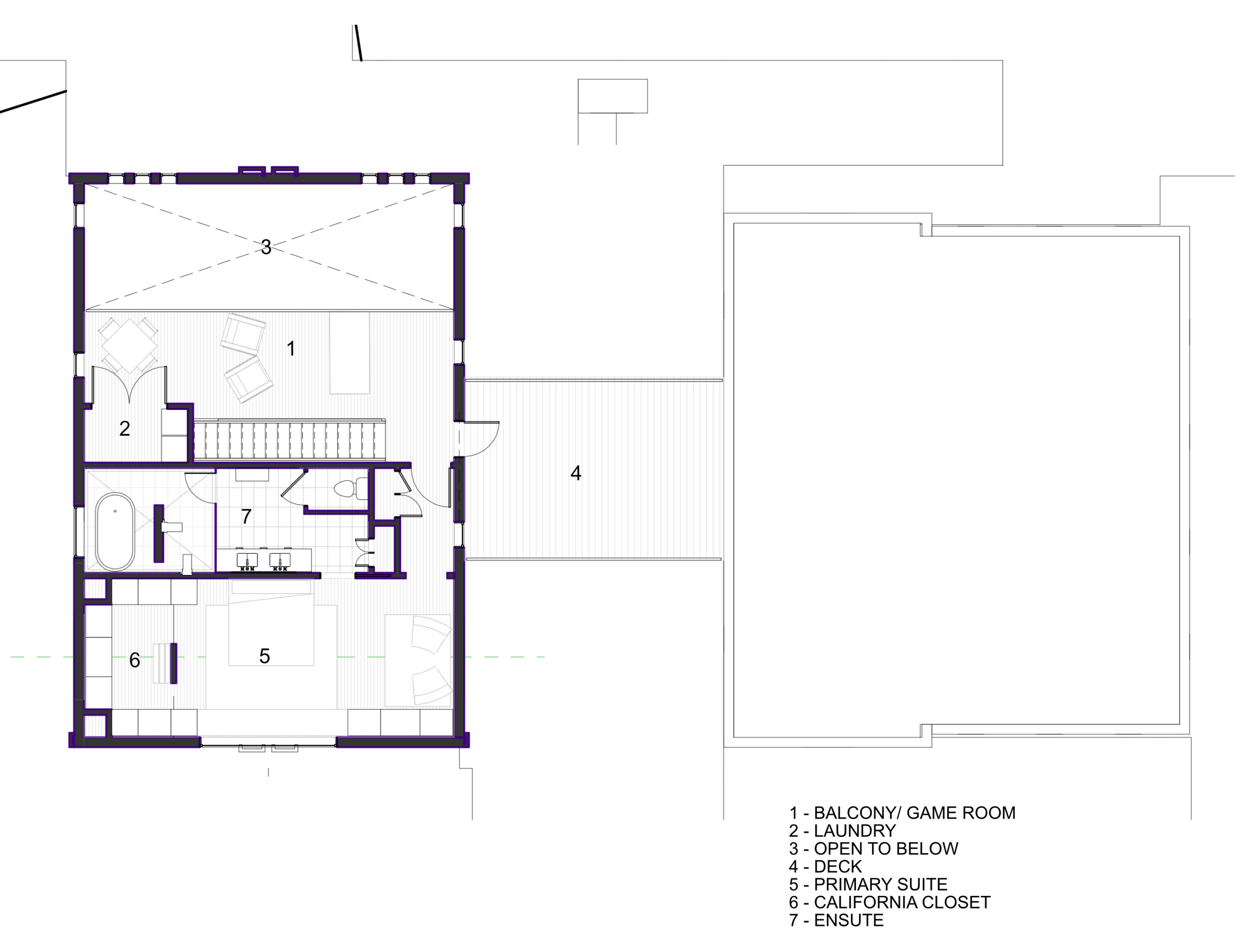
Concept house design based on a 1968 Ford Shelby Mustang.
Two Story open plan with 4 car garage and mechanic shop with family-in-law suite. Full eat-in kitchen with prep room and barbecue smoker pit at the patio. Owners suite overlooks ground floor with entertainment/gaming area.



















